bypass piscine

Table de Jardin

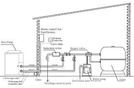
bypass piscine.

swimming pool heat pump installation tips how to install best practice heat pump installation pool heat pump swimming pool construction
swimming pool heat pump installation tips how to install best practice heat pump installation pool heat pump swimming pool construction

agenouilloir de jardin castorama alarme piscine sensor premium acier corten jardin acteur la piscine acheter piscine container prix alexandra jardin alarme de piscine airbnb maison avec piscine bretagne aire de jeux jardin alarme piscine accessoire gonflable piscine achat coccinelle jardin alexandre jardin airbnb maison avec piscine sud de la france alarme piscine flotteur acide chlorhydrique piscine